2325 A Renaissance Dr
Monthly payment includes rent, NNN charges, and utilities!!
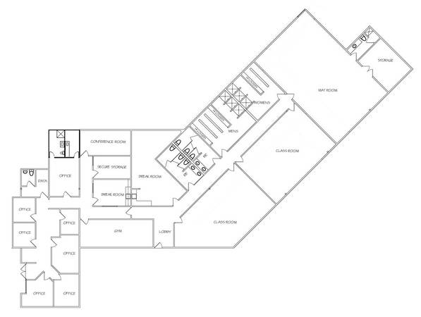
This space features a Lobby, 7 offices, 3 meeting rooms, conference, gym, locker rooms w/showers, storage, 10 restroom stalls
Renaissance Office Park wraps around the back of the Renaissance shopping center at the northwest corner of Tropicana and Eastern. This large office development features numerous buildings in a garden-style setting. Lots of greenery, courtyards, walkways, and common areas make this a beautiful and functional location. Parking is abundant, with many suites featuring parking directly adjacent to the front door! All suites are on the ground floor with lots of windows and there are many sizes and configurations available to meet your needs.
Other properties also available citywide.
Renaissance Office Park video tour: http://youtu.be/uCZJxHBdFK8
Moonbeam Leasing and Management LLC
http://www.moonbeammanagement.com